Distelweg 269
OBJECT
KEY CHARACTERISTICS
DESCRIPTION
***Due to great interest, it is no longer possible to schedule viewings***
Living in a unique wooden gem in the middle of Amsterdam North!
Dreaming of a sustainable and stylish place to live in a vibrant location? Then this beautiful 3-bedroom apartment in the Timberhouse is exactly what you are looking for!
This unique building, built entirely of wood, is a real eye-catcher in the new Overhoeks district. Located between the IJ and the Van der Pekbuurt, here you can enjoy all the hustle and bustle of the city with the peace and quiet of the water and greenery around you. And with EYE Film Museum just steps away, there is always something to do.
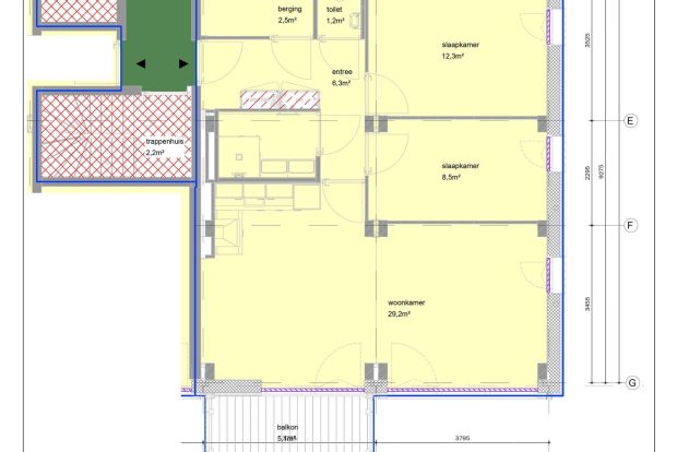
Inside, you will experience a warm and modern sense of home. With an area of about 67 m², this apartment on the fifth floor offers all the space you need. Two bedrooms, a luxury kitchen with modern appliances, a bathroom with double sink and design radiator, a separate toilet and a lovely balcony complete the picture. And for extra relaxation, there is a beautiful, private courtyard garden where you can relax.
This apartment is perfect for:
– Busy professionals looking for a comfortable and stylish place to live with all amenities at your fingertips.
– Lovers of sustainability who want to live in a unique and ecological building.
Details Distelweg 269:
– Available a.s.a.p.;
– Located on the fifth floor;
– Living area approx. 67 m²;
– Two bedrooms;
– Including high quality flooring;
– Luxury kitchen with modern appliances;
– Bathroom with shower, double sink and design radiator;
– Separate toilet;
– Semi-furnished with floor, wallpaper, curtain rails. Without lighting, curtains and furniture;
– Balcony;
– Service costs € 46,- per month;
– House sharing not allowed, no students;
– No pets and no smokers;
– The house is rented including parking. The costs are € 156,15 per month and are included in the rent of the house.
This information has been carefully compiled by Eefje Voogd Makelaardij | from CBRE. However, no liability is accepted for any incompleteness, inaccuracy or otherwise, or the consequences thereof. All dimensions and surface areas stated are indicative only.
The Measuring Instruction is based on NEN2580. The Measuring Instruction is intended to apply a more uniform way of measuring to give an indication of the usable area. The Measuring Instruction does not completely rule out differences in measurement results, for example due to differences in interpretation, rounding off or limitations in carrying out the measurement. The surface area may therefore differ from comparable properties and/or old references. We emphasise that no rights can be derived from any difference between the stated and actual size. If exact measurements are important, we recommend that you measure the dimensions yourself or have them measured.
More LessLOCATION
- Region
- NOORD - HOLLAND
- City
- AMSTERDAM
- Adress
- Distelweg 269
- Zip code
- 1031 HD
FEATURES
LAYOUT
- Number of rooms
- 3
- Number of bedrooms
- 2
- Number of bathrooms
- 1
- Number of floors
- 1
STAY UP TO DATE
Sign up for our newsletter.
CONTACT






















































