Beursstraat 29C
OBJECT
KEY KENMERKEN
BESCHRIJVING
City centre, Beursstraat 29-C
Midden in het historische stadscentrum van Amsterdam, met een prachtig uitzicht op de beroemde Beurs van Berlage en gelegen op EIGEN GROND, ligt dit ruime 2-kamerappartement van 62 m². Gelegen op de 2e op de verdieping van een stoer pakhuis uit ca. 1850. Alles wat het Centrum van Amsterdam biedt is op loopafstand.
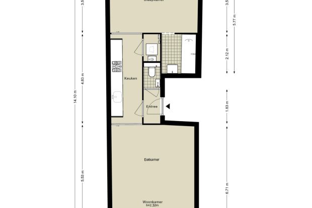
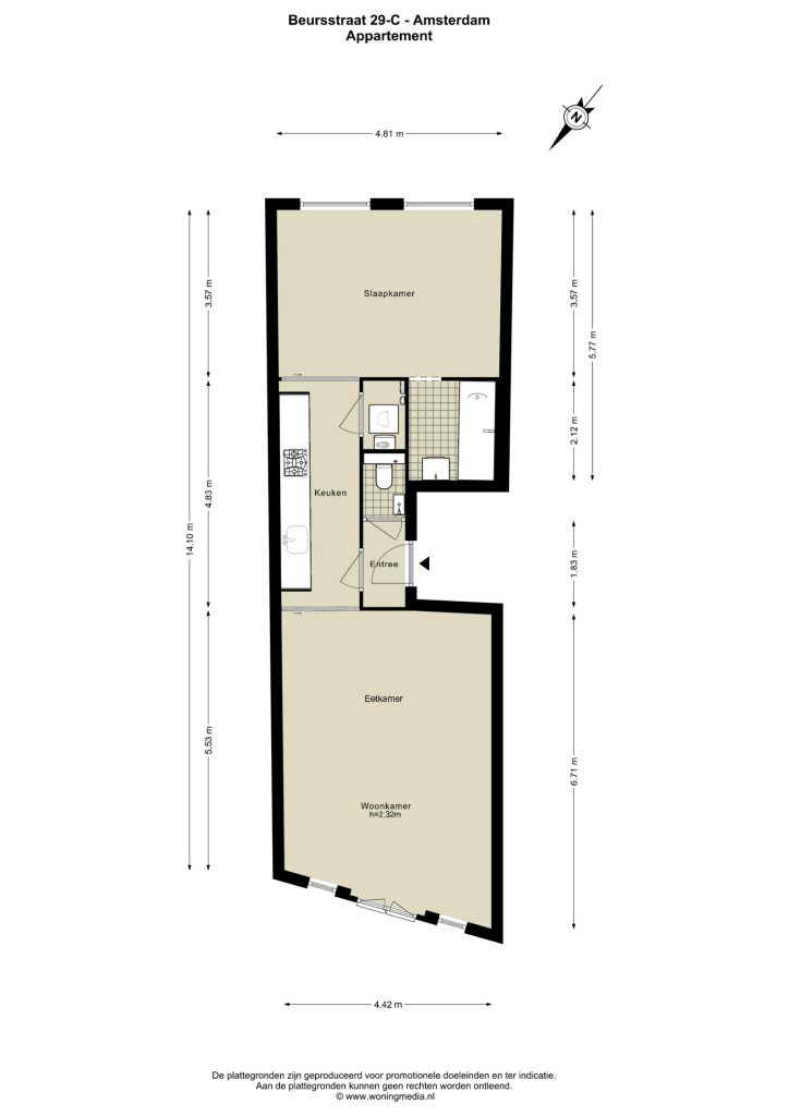
Indeling:
Via een ruim en keurig trappenhuis tref je de voordeur van dit appartement aan op de tweede etage.
Aan de voorzijde van de woning is de ruime en lichte woonkamer met een heerlijke living met een Frans balkon. Vanuit hier heb je een prachtige uitzicht op de Beurs van Berlage. Er is ook genoeg ruimte voor een eethoek.
Centraal gelegen in de woning is de knusse keuken en vanuit hier loop je naar de zeer riante slaapkamer aan de achterzijde van het pand gelegen. De slaapkamer is groot genoeg voor veel kastruimtee en vanuit de slaapkamer kom je in de badkamer voorzien van o.a. een ligbad. Door op een slimme manier gebruik te maken van een inpandige schuifdeur kan je de verschillende ruimtes afsluiten. Daarnaast een wasruimte/berging en ook separaate toilet.
Het appartement is direct bewoonbaar en ook direct te betrekken.
Bijzonderheden:
– Woonoppervlakte: 62 m² (conform NEN-2580);
– Bouwjaar: ca.1650;
– Gelegen op eigen grond;
– Gerenoveerd en gesplitst in 1995;
– Servicekosten € 78,- per maand
– VvE bestaat uit 4 leden;
– Super ligging in hartje centrum maar toch een rustige straat;
– Oplevering kan snel.
Omgeving:
Dit pand is gesitueerd in hartje centrum van Amsterdam achter de Beurs van Berlage en op loopafstand van o.a. de Bijenkorf, het Damrak, Museumplein en de binnenstad met een groot gevarieerd aanbod van winkels, restaurants, terrassen en bezienswaardigheden. Openbaar vervoer en bereikbaarheid is uitstekend verzorgd met op loopafstand de tram, bus en centraal station. Tevens zijn uitvalswegen goed bereikbaar.
Het pand bevindt zich in een unieke rustige straat tussen de Warmoesstraat en ’t Damrak.
Deze informatie is met zorg samengesteld door Eefje Voogd Makelaardij b.v. We kunnen echter niet aansprakelijk gesteld worden voor eventuele onvolledigheden of fouten. De Meetinstructie, die is gebaseerd op NEN2580, geeft een duidelijke manier om de gebruiksoppervlakte te meten. Het kan zijn dat meetresultaten verschillen, waardoor de oppervlakte anders kan zijn dan bij vergelijkbare objecten. Je kunt geen rechten ontlenen aan de verschillen tussen de opgegeven en de werkelijke grootte. Voor een nauwkeurige maatvoering raden wij aan om zelf te (laten) meten
Deze woning wordt aangeboden door een MVA Certified Expat Broker.
Lees meer Lees minderLOCATIE
- Provincie
- NOORD - HOLLAND
- Plaats
- AMSTERDAM
- Adres
- Beursstraat 29C
- Postcode
- 1012 JV
KENMERKEN
INDELING
- Aantal kamers
- 2
- Aantal slaapkamers
- 1
- Aantal badkamers
- 1
- Aantal woonlagen
- 1
- Voorzieningen
- Mechanische ventilatie, TV kabel, Frans balkon
GEÏNTERESSEERD IN DIT OBJECT?
PLAN EEN BEZICHTIGING IN
CONTACTPERSOON





















































































