Dijkmeerlaan 511
OBJECT
KEY KENMERKEN
BESCHRIJVING
Appartement is gelegen op de 14-e verdieping met een prachtig uitzicht met maar liefst 2 balkons op het Westen en een prachtig uitzicht!
Direct wonen in het luxueuze, nagelnieuwe en op eigen grond gelegen appartementsgebouw The Robin, vlakbij het centrum van Amsterdam? Dat kan!
De bouw van The Robin is geïnspireerd op de vorm van de originele bajestoren, met rondom een gelaagd landschap van daktuinen. Ter nagedachtenis aan de geschiedenis van de grond is zelfs een origineel stuk gevangenismuur in ere gehouden. Indrukwekkend en een echte eyecatcher is het zeer ruimtelijke en hoogwaardig afgewerkte gemeenschappelijke atrium bij binnenkomst van het complex.
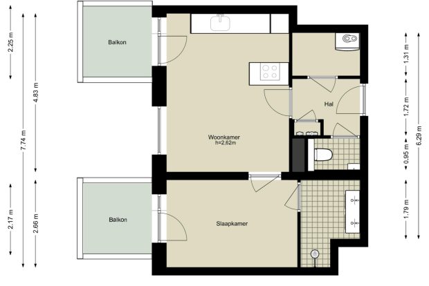
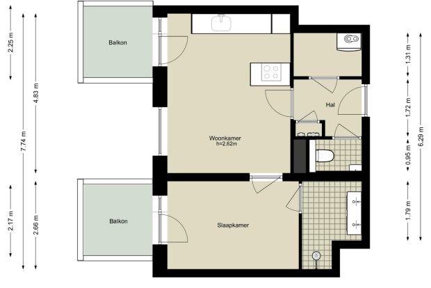
Dit prachtige, nog nooit bewoonde 2 kamer appartement van ca. 45 m2 in de nieuwe woonwijk Bajeskwartier is voorzien van vloerverwarming/-koeling en een warmteterugwininstallatie (WKO & WTW). De woning is gelegen op de 14-e verdieping en beschikt over 2 balkons met de avondzon. Er is een fraaie witte keuken met een zwart composiet werkblad en Siemens keukenapparatuur. Ook is er een kookeiland Het appartement is “turn-key”, glad gestuukt en netjes afgewerkt. De gehele vloer is voorzien van een PVC vloer. De badkamer is volledig betegeld en voorzien van een inloopdouche en een dubbele wastafel. Er is ook een voorbereiding op glasvezel internet aanwezig.
Dit appartement is direct bewoonbaar en het enige wat je zelf nog moet doen is het meubilair plaatsen. De rest is allemaal geregeld in je nieuwe, sleutelklaar opgeleverde woning!
Bijzonderheden
-bouwjaar 2024
– gelegen op EIGEN GROND
– 14-e verdieping van een modern appartementengebouw met liften,
– 2 balkons op het Westen gelegen
– gemeenschappelijke daktuinen en zonnepanelen (centrale voorziening) op het dak
– net opgeleverd 2 kamer appartement van ca.45 m²
– vloerverwarming en vloerverkoeling voor optimaal comfort
– uitstekend geïsoleerd, gasloos en voorzien van energielabel A+
– WKO- & WTW-systeem
– de woning is volledig sleutelklaar
– de servicekosten bedragen € 147,- per maand
– Amstel station is op loopafstand gelegen
– oplevering: kan snel.
The Robin:
Heb je zelf geen auto maar wil je graag gebruik maken van de deelmobiliteit in het Bajeskwartier? Als bewoner heb je toegang tot de mobiliteitshub. Op afroep kan je dan een elektrische deelauto huren via het servicecenter in het gebouw. Er bevindt zich in de onderbouw ook een parkeergarage waar plekken kunnen worden gehuurd. Wordt er een pakketje bezorgd en ben je niet huis? Geen zorgen, het servicecenter neemt jouw pakketje aan. Als bewoner van The Robin kun je genieten van de gemeenschappelijke dakterrassen op de 5e en 9e verdieping, waar je kunt ontspannen en genieten van het uitzicht over de groene en duurzame wijk.
Ligging & bereikbaarheid:
Het luxe appartementsgebouw The Robin staat in de duurzame, energieneutrale wijk Bajeskwartier, welke grenst aan de hippe wijk Overamstel en het Amstelkwartier. In deze wijk worden veel nieuwe voorzieningen toegepast op het gebied van wonen, werken en recreëren. De Amstel ligt op steenworp afstand, waar je kunt genieten van een wandeling of een gezellige lunch bij een van de populaire restaurants zoals tHuis aan de Amstel en L’Osteria. De buurt is perfect verbonden met het openbaar vervoer, met metrohalte Spaklerweg op slechts 2 minuten lopen en station Amstel binnen 5 fietsminuten. Binnen 10 minuten ben je op de Zuidas, en met de auto ben je snel op de snelwegen naar Schiphol of het centrum van de stad.
Deze informatie is met zorg samengesteld door Eefje Voogd Makelaardij B.V.
We kunnen echter niet aansprakelijk gesteld worden voor eventuele onvolledigheden of fouten. De Meetinstructie, die is gebaseerd op NEN2580, geeft een duidelijke manier om de gebruiksoppervlakte te meten. Het kan zijn dat meetresultaten verschillen, waardoor de oppervlakte anders kan zijn dan bij vergelijkbare objecten. Je kunt geen rechten ontlenen aan de verschillen tussen de opgegeven en de werkelijke grootte. Voor een nauwkeurige maatvoering raden aan om zelf (laten) meten.
This property is listed by a MVA Certified Expat Broker.
Lees meer Lees minderLOCATIE
- Provincie
- NOORD - HOLLAND
- Plaats
- AMSTERDAM
- Adres
- Dijkmeerlaan 511
- Postcode
- 1096 DE
KENMERKEN
INDELING
- Aantal kamers
- 2
- Aantal slaapkamers
- 1
- Aantal badkamers
- 1
- Aantal woonlagen
- 1
- Voorzieningen
- Lift, Glasvezel kabel, Balansventilatie
GEÏNTERESSEERD IN DIT OBJECT?
PLAN EEN BEZICHTIGING IN
CONTACTPERSOON



















































