Gustav Mahlerlaan 21M
OBJECT
KEY KENMERKEN
BESCHRIJVING
Stijlvol wonen in The Gustav.
In het architectonisch verfijnde complex The Gustav (2020) bevindt zich deze stijlvol afgewerkte studio van circa 36 m², gelegen op de zesde verdieping en omringd door licht, rust en comfort. Het hoge plafond en de zorgvuldig gekozen materialen zorgen voor een serene sfeer. Dankzij de zuidwestelijke ligging valt het licht royaal naar binnen, waardoor de studio warm en uitnodigend aanvoelt. Het gebouw biedt daarnaast hoogwaardige gedeelde voorzieningen en een centrale ligging in het hart van de Zuidas.
INDELING
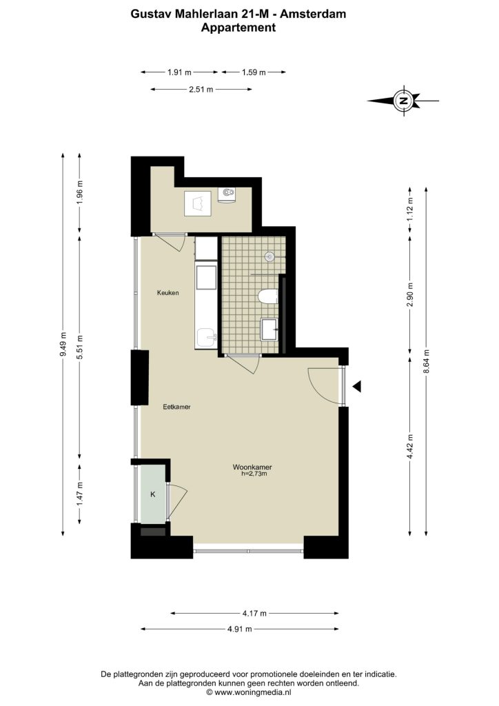
De entree van The Gustav heeft een representatieve lobby, van waaruit de lift je naar de zesde verdieping brengt. Achter de voordeur valt direct de rustige ligging van de studio op. Hier bevindt zich een praktische inpandige berging met aansluiting voor de wasmachine, ruimte voor een vriezer en de WTW-installatie.
De woonruimte is open en licht. Dit zorgt niet alleen voor een fijne verbinding met buiten, maar geeft de woning ook een zonnige en luchtige sfeer. Het interieur is strak, met hoge deuren, nette wandafwerking, dimbare inbouwverlichting en een hoogwaardige vloer met vloerverwarming door de hele studio.
De moderne keuken vormt een vanzelfsprekend onderdeel van de leefruimte en is uitgerust met een composiet werkblad en volledig geïntegreerde apparatuur: inductiekookplaat, afzuigkap, combi-oven/magnetron, vaatwasser en koelkast met vriesvak. De badkamer is efficiënt ingedeeld en voorzien van een inloop(regen)douche met glazen wand, een strak wastafelmeubel en een toilet. Alles voelt verzorgd en kwalitatief aan, de studio is direct te betrekken.
GEMEENSCHAPPELIJKE RUIMTES
Direct naast het appartement bevindt zich een prachtige gedeelde zitruimte met hoge plafonds en een indrukwekkend uitzicht over de Zuidas. Deze ruimte wordt uitsluitend gedeeld met de andere bewoners van de zesde verdieping, wat het gevoel van rust en exclusiviteit versterkt. Daarnaast is er een enorm gemeenschappelijk dakterras waar je heerlijk kunt ontspannen of samen kunt genieten van de zon. Een fietsenberging is eveneens aanwezig.
In de onderliggende garage zijn bovendien regelmatig parkeerplaatsen te huur.
LOCATIE & OMGEVING
The Gustav ligt midden in de Zuidas, een gebied dat bekendstaat om zijn internationale karakter, hoogwaardige architectuur en complete voorzieningen. In de directe omgeving vind je winkels zoals Albert Heijn, Ekoplaza en het luxe Gelderlandplein. Voor lunch, diner of koffie zijn onder meer Loetje, The Breakfast Club en Market 33 dichtbij huis.
Wie graag buiten is, bereikt in enkele minuten het Beatrixpark, het Amstelpark of het Amsterdamse Bos. Sportliefhebbers vinden Club Sportive en VondelGym in de directe omgeving. Station Amsterdam Zuid bevindt zich op loopafstand en biedt snelle verbindingen richting Schiphol, Rotterdam, Den Haag en internationale bestemmingen. De rest van de stad is goed bereikbaar met tram 5 en 25 en de Noord/Zuidlijn. Met de auto zit je binnen enkele minuten op de Ring A10 via afslag S108 of S109.
BIJZONDERHEDEN
– Woonoppervlakte: ca. 36 m² (NEN-2580);
– Stijlvol en instapklaar;
– Energielabel A, HR ++ glas;
– Geheel voorzien van vloerverwarming én -verkoeling;
– Moderne keuken met inbouwapparatuur;
– Luxe en ruime badkamer;
– Prachtige gedeelde zitruimte op de verdieping (exclusief voor bewoners van de zesde verdieping);
– Enorm gemeenschappelijk dakterras en fietsenberging;
– Regelmatig parkeerplaatsen te huur in de onderliggende garage;
– Geen directe buren aan weerszijden;
– Gelegen op erfpachtgrond. Het huidige tijdvak loopt t/m 31 augustus 2067 en de huidige canon bedraagt € 1.192 per jaar (+ indexatie);
– Niet-zelfbewoningsclausule van toepassing;
– Oplevering in overleg, snelle aanvaarding mogelijk.
Deze informatie is met zorg samengesteld door Eefje Voogd Makelaardij B.V.
We kunnen echter niet aansprakelijk gesteld worden voor eventuele onvolledigheden of fouten. De Meetinstructie, die is gebaseerd op NEN2580, geeft een duidelijke manier om de gebruiksoppervlakte te meten. Het kan zijn dat meetresultaten verschillen, waardoor de oppervlakte anders kan zijn dan bij vergelijkbare objecten. Je kunt geen rechten ontlenen aan de verschillen tussen de opgegeven en de werkelijke grootte. Voor een nauwkeurige maatvoering raden aan om zelf (laten) meten.
Deze woning wordt aangeboden door een MVA Certified Expat Broker.
Lees meer Lees minderLOCATIE
- Provincie
- NOORD - HOLLAND
- Plaats
- AMSTERDAM
- Adres
- Gustav Mahlerlaan 21M
- Postcode
- 1082 MK
KENMERKEN
INDELING
- Aantal kamers
- 1
- Aantal badkamers
- 1
- Aantal woonlagen
- 1
- Voorzieningen
- Mechanische ventilatie, TV kabel, Lift
GEÏNTERESSEERD IN DIT OBJECT?
PLAN EEN BEZICHTIGING IN
CONTACTPERSOON























































































