Hoofdweg 328H
OBJECT
KEY KENMERKEN
BESCHRIJVING
Charmante benedenwoning met diepe tuin in het hart van De Baarsjes!
Sfeervol wonen in een uitgebouwde 3-kamer benedenwoning van ca. 80 m² met diepe, zonnige tuin van ca. 48 m², gelegen op een geliefde locatie in Amsterdam-West. De woning combineert karakteristieke details met modern wooncomfort, waaronder energielabel A, glas-in-loodramen en een moderne afwerking. Een fijne plek voor wie zoekt naar ruimte, licht en een rustige buitenplek in de stad.
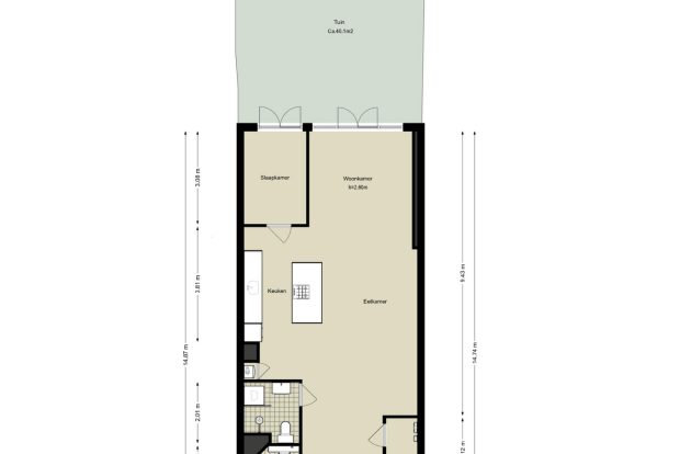
INDELING
Via de voortuin met ruimte voor fietsen en een zitje in de middagzon, is er toegang tot de woning via een eigen entree. De hal leidt naar de lichte en brede woonkamer, waar de uitbouw zorgt voor extra leefruimte en een prettige verbinding met de tuin. Openslaande deuren geven toegang tot de zonnige achtertuin van ca. 40 m² op het zuidoosten, met een royale berging van ca. 8 m².
De open keuken is stijlvol en praktisch ingericht, voorzien van diverse inbouwapparatuur en een Quooker. De indeling is logisch en ruimtelijk, met aan de voorzijde een royale slaapkamer met karakteristieke glas-in-loodramen. Aan de achterzijde bevindt zich een tweede kamer, ideaal als kinderkamer, werkplek of logeerkamer.
De badkamer is compact en uitgerust met douche, wastafel, toilet en aansluiting voor wasmachine. Daarnaast is er een separaat tweede toilet. De woning is goed onderhouden en voorzien van moderne installaties, waaronder een Intergas CV-ketel uit 2019.
LOCATIE EN OMGEVING
Dit appartement ligt aan de Hoofdweg in De Baarsjes, een geliefde en goed bereikbare straat in Amsterdam-West. De buurt staat bekend om haar levendige karakter en prettige mix van stadse dynamiek en rust. In de directe omgeving zijn diverse winkels, boetiekjes en horecagelegenheden te vinden, waaronder lokale favorieten als Bar Baarsch, Fort Negen en De neef van Fred.
Voor ontspanning liggen zowel het Rembrandtpark als het Erasmuspark op loopafstand. Ook zijn er volop voorzieningen zoals scholen, crèches, speeltuinen en sportfaciliteiten in de buurt. Het centrum van Amsterdam is binnen enkele minuten bereikbaar per fiets, en met het openbaar vervoer ben je snel bij Station Sloterdijk of Centraal Station. De Ring A10 is eenvoudig aan te rijden met de auto.
ERFPACHT
De erfpachtcanon is afgekocht tot en met 16-09-2054, verkoper heeft reeds de overstap gemaakt naar eeuwigdurende erfpacht onder de gunstig voorwaarden. Het jaarlijks canon vanaf 17-09-2054 bedraagt €595,76, exclusief inflatie.
BIJZONDERHEDEN
– Woonoppervlakte van 80,2 m² (conform NEN-2580);
– Zonnige tuin van ca. 40 m² op het zuidoosten met berging van ca. 8 m²;
– Energielabel A;
– HR++ beglazing én glas-in-loodramen;
– Uitbouw gerealiseerd in 2016 (UFA Bouw);
– Gemeentelijk monument;
– Professioneel beheerde VvE, bijdrage €179,- per maand;
– Gemeentelijke erfpacht afgekocht tot 16 september 2054, daarna gunstig;
– Oplevering in overleg;
Deze informatie is door Eefje Voogd Makelaardij | from CBRE met de nodige zorgvuldigheid samengesteld. Onzerzijds wordt echter geen enkele aansprakelijkheid aanvaard voor enige onvolledigheid, onjuistheid of anderszins, dan wel de gevolgen daarvan. Alle opgegeven maten en oppervlakten zijn indicatief.
De Meetinstructie is gebaseerd op de NEN2580. De Meetinstructie is bedoeld om een meer eenduidige manier van meten toe te passen voor het geven van een indicatie van de gebruiksoppervlakte. De Meetinstructie sluit verschillen in meetuitkomsten niet volledig uit, door bijvoorbeeld interpretatieverschillen, afrondingen of beperkingen bij het uitvoeren van de meting. De oppervlakte kan derhalve afwijken van vergelijkbare panden en/of oude referenties. Wij benadrukken dat aan enig verschil tussen de opgegeven en de werkelijke grootte geen rechten kunnen worden ontleend. Indien de exacte maatvoering van belang is, raden wij aan de maten zelf te (laten) meten.
Lees meer Lees minderLOCATIE
- Provincie
- NOORD - HOLLAND
- Plaats
- AMSTERDAM
- Adres
- Hoofdweg 328H
- Postcode
- 1056 DB
KENMERKEN
INDELING
- Aantal kamers
- 3
- Aantal slaapkamers
- 2
- Aantal badkamers
- 1
- Aantal woonlagen
- 1
- Voorzieningen
- Mechanische ventilatie, TV kabel, Natuurlijke ventilatie
BLIJF OP DE HOOGTE
Schrijf je in voor onze nieuwsbrief.
CONTACTPERSOON































































































