Tintorettostraat 13-3
OBJECT
KEY KENMERKEN
BESCHRIJVING
Royaal en licht appartement van ca. 81 m² met vrij uitzicht over het Raphaëlplein in de Apollobuurt in Amsterdam Oud-Zuid. Hier komen elegantie en comfort samen. Het appartement beschikt over een groot zonnig dakterras op het zuiden en biedt een unieke combinatie van ruimte, rust en privacy op een toplocatie.
Locatie & Bereikbaarheid
De Tintorettostraat is een rustige straat om de hoek van het Minervaplein. Op loopafstand vindt u de chique Beethovenstraat en Cornelis Schuytstraat waar u terecht kunt voor de dagelijkse boodschappen maar ook exclusieve boetieks, gezellige cafés en uitstekende restaurants vindt. Het Beatrixpark en het Vondelpark zijn op loopafstand gelegen.
In de directe omgeving vindt u diverse culturele hotspots zoals het Rijksmuseum, Van Gogh Museum en het Concertgebouw, allemaal binnen enkele minuten fietsen.
De Zuidas en treinstation Zuid/WTC liggen op slechts 10 minuten lopen. Met het openbaar vervoer en via de Ring A10 (op 4 minuten afstand) is de woning uitstekend bereikbaar. Parkeren kan via het vergunningstelsel; er zijn momenteel twee parkeervergunningen beschikbaar.
Indeling
Derde verdieping:
Eigen entree via het sfeervolle portaal. Trap naar de derde verdieping. Ruime, lichte woonkamer over de gehele breedte aan de voorzijde (7.5M breed) met toegang tot het balkon en een open (nieuwe) keuken voorzien (schier)eiland, kwartsiet aanrechtblad, oven, Quooker, vaatwasser en koelkast.
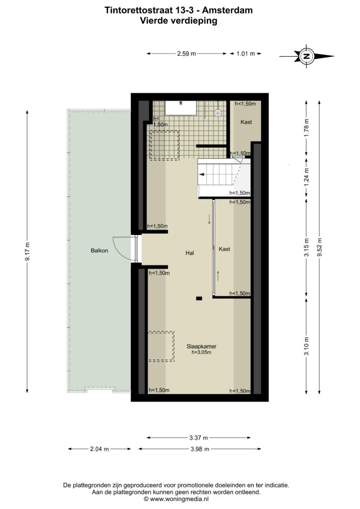
Vierde verdieping:
Via de trap in de woonkamer bereikt u de bovenverdieping met een royale slaapkamer voorzien van inloopkaast en badkamer. Deze verdieping bevindt zich in de nok van het pand en biedt toegang tot het zonnige dakterras op het zuiden.
Optionele indeling: de vierde verdieping zou mogelijkerwijs kunnen worden uitgebreid door een (gedeeltelijke) uitbouw op het dakterras waarbij eenvoudig een tweede slaapkamer kan worden gecreerd. Graag verwijzen wij u naar de website van de Gemeente / Omgevingsloket voor de van toepassing zijnde vergunningsprocedures.
Bijzonderheden
– Woonoppervlakte ca. 81 m²;
– Zonnig dakterras van 20 m² gelegen op het zuiden;
– Gerenoveerd in 2025;
– In 2020 heeft een wijziging van de splitsingsakte (met omgevingsvergunning) plaatsgevonden waarbij het dakterras officieel met dit appartementsrecht is meegesplitst;
– Veel kastruimte zoals onder de trap, naast de keuken en nieuw gebouwde kast op de vierde verdieping;
– Erfpacht: AB 2000, tijdvak 16-07-2005 t/m 15-07-2055, de canon bedraagt thans € 786.58 per jaar – mogelijkheid tot afkopen waarbij de afkoopsom voor het huidige tijdvak ca. € 15.000,- bedraagt;
– Ook het eeuwigdurend afkopen van de erfpacht behoort tot de mogelijkheden;
– VvE in oprichting;
– Indien gewenst kan de gehele inboedel additioneel worden overgenomen;
– 2 parkeervergunningen mogelijk, raadpleeg de website van de Gemeente voor actuele informatie.
Deze informatie is met zorg samengesteld door Eefje Voogd Makelaardij B.V. We kunnen echter niet aansprakelijk gesteld worden voor eventuele onvolledigheden of fouten. De Meetinstructie, die is gebaseerd op NEN2580, geeft een duidelijke manier om de gebruiksoppervlakte te meten. Het kan zijn dat meetresultaten verschillen, waardoor de oppervlakte anders kan zijn dan bij vergelijkbare objecten. Je kunt geen rechten ontlenen aan de verschillen tussen de opgegeven en de werkelijke grootte. Voor een nauwkeurige maatvoering raden aan om zelf (laten) meten.
Deze woning wordt aangeboden door een MVA Certified Expat Broker.
Lees meer Lees minderLOCATIE
- Provincie
- NOORD - HOLLAND
- Plaats
- AMSTERDAM
- Adres
- Tintorettostraat 13-3
- Postcode
- 1077 RN
KENMERKEN
INDELING
- Aantal kamers
- 4
- Aantal slaapkamers
- 1
- Aantal woonlagen
- 2
GEÏNTERESSEERD IN DIT OBJECT?
PLAN EEN BEZICHTIGING IN
CONTACTPERSOON






























































































