Eliza van Calcarstraat 13
OBJECT
KEY KENMERKEN
BESCHRIJVING
Riante hoekwoning van circa 167m2 met maar liefst vijf royale slaapkamers en parkeerruimte voor twee auto’s op eigen terrein. Deze instapklare, ideale gezinswoning bestaat uit drie woonlagen en beschikt over een zonnige voor- en achtertuin met vrij uitzicht op een groenstrook. Op de bovenste verdieping bevindt zich een ruim dakterras, waar u van ’s ochtends vroeg tot ’s avonds laat kunt genieten van de zon. De woning is uitstekend onderhouden en ligt aan het einde van een autoluw hofje in een groene, kindvriendelijke wijk
Indeling:
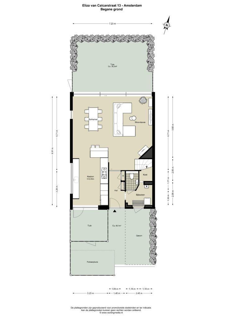
Begane grond (geheel voorzien van vloerverwarming):
Entree, hal met meterkast, een provisiekast, toiletruimte met hangend toilet en fontein, toegang tot de inpandige berging met de cv-ketel en wasmachine-/ drogeraansluiting. Vanuit de hal betreedt u de royale, lichte woonkamer met open keuken, een Boley gashaard en de trapopgang naar de eerste verdieping. Een glazen pui over de volledige breedte van de woning zorgt voor veel daglicht en geeft toegang tot de achtertuin, grenzend aan een groenstrook.
De moderne keuken met schiereiland is zeer compleet uitgerust met een composiet werkblad, 5-pits gasstel, afzuigkap, vaatwasser, vrijstaande Amerikaanse koel-/vrieskast, aparte magnetron en oven. Alle inbouwapparatuur is van het merk Siemens. Via een deur in de keuken bereikt u de zonnige voortuin – de perfecte plek om te barbecueën.
Eerste verdieping:
Via de overloop zijn alle vertrekken bereikbaar, totaal zijn er drie royale slaapkamers aanwezig, waaronder de ouderslaapkamer. De luxe badkamer is uitgerust met een dubbele wastafel met meubel, extra ruime inloopdouche met stortdouche en zitbank, hangend toilet en vloerverwarming. Aan de badkamer grenst een linnenkast met het mechanische ventilatiesysteem.
Tweede verdieping:
Hier bevinden zich nog twee slaap-/werkkamers waarvan één voorzien is van airconditioning, en inbouwkast – ideaal voor thuiswerken. De andere kamer fungeert momenteel als bijkeuken maar is eenvoudig om te bouwen tot tweede badkamer. Er is bovendien de mogelijkheid om een extra kamer toe te voegen of de bestaande kamers met circa 20m2 te vergroten. De gehele verdieping is voorzien van kunststof kozijnen. Vanaf de overloop is het ruime dakterras bereikbaar, waar u de hele dag in alle privacy van de zon kunt genieten.
Tuin:
De achtertuin op het noordwesten heeft vrij uitzicht over het groen en laat u genieten van de late middag- en avondzon. Dankzij de aankoop van extra grond zijn de achtertuinen van deze en de naastgelegen woningen ruim tweemaal zo groot als de standaardtuinen van soortelijke woningen in deze wijk. De voortuin, gelegen op het zuiden, biedt zon gedurende vrijwel de hele dag. Deze tuin is betegeld en deels voorzien van kunstgras en biedt parkeerruimte voor twee auto’s, waarvan één onder een carport. Ook is er voldoende ruimte voor het stallen van fietsen.
Locatie & bereikbaarheid:
De wijk is ruim opgezet met veel groen en speelruimte. Op loopafstand vindt u meerdere scholen, een gezondheidscentrum, kinderopvang, diverse sportfaciliteiten, stadspark Osdorp en de Sloterplas. Het Watersportcentrum Sloterplas biedt volop recreatie: zeilen, suppen, windsurfen, kanoën en waterfietsen. Ook het bekende hardloopparcours “Rondje Sloterplas” zorgt voor de nodige beweging en ontspanning in de frisse buitenlucht.
De woning ligt gunstig gesitueerd tussen diverse winkelstraten en het op loopafstand van het winkelcentrum Osdorpplein. Hier vindt u een breed scala aan voorzieningen en winkels, van supermarkten tot drogisterijen, winkels, speciaalzaken, restaurants en cafés. Voor de dagelijkse boodschappen of een middagje winkelen hoeft u de buurt dus niet uit.
Op cultureel vlak is er eveneens veel te beleven: Theater De Meervaart ligt op slechts vijf minuten lopen en biedt een rijk programma aan toneel, muziek, dans en cabaret.
De woning is uitstekend bereikbaar, zowel met het openbaar vervoer als per auto of fiets. Tram- en bushaltes richting Centraal Station en NS-station Lelylaan liggen aan de Pieter Calandlaan. Met de auto bereikt u snel de A10 (Ring Amsterdam), A9 (Amstelveen/Alkmaar), A2 (Utrecht) en A4 (Schiphol/Den Haag/Rotterdam). Per fiets bent u binnen 20 minuten in het centrum van Amsterdam.
Eigendomssituatie:
Er is sprake van voortdurend recht van erfpacht, eigendom van de gemeente Amsterdam. De Algemene Bepalingen 2000 zijn van toepassing. De canon is afgekocht tot en met 31 januari 2058. De aanvraag voor overstap naar eeuwigdurende erfpacht onder de gunstige overstapregeling is in aanvraag en tijdig ingediend.
Bijzonderheden:
– Woonoppervlak: 167 m² gebruiksoppervlakte wonen, NEN2580 meetrapport aanwezig;
– Achtertuin ca. 36 m², voortuin ca. 43 m², dakterras ca. 44 m²;
– Bouwjaar: 2008;
– Unieke ligging aan het einde van een doodlopend hofje;
– Carport en parkeerruimte voor 2 auto’s op eigen terrein;
– Voor-, achtertuin en dakterras voorzien van elektra en watertappunten;
– Volledig geïsoleerd;
– Badkamer (2022) en toiletruimte (2025) recent gerenoveerd;
– Binnen- en buitenzijde recent volledig geschilderd (2025);
– Verwarming en warm water via een Intergas HR- combi ketel (2022);
– Vloerverwarming op de begane grond en in de badkamer;
– Energielabel: A;
– Oplevering in overleg;
– Notaris: naar keuze koper, mits koopakte conform Model Ring bij notaris in Groot-Amsterdam.
Deze informatie is met zorg samengesteld door Eefje Voogd Makelaardij B.V.
We kunnen echter niet aansprakelijk gesteld worden voor eventuele onvolledigheden of fouten. De Meetinstructie, die is gebaseerd op NEN2580, geeft een duidelijke manier om de gebruiksoppervlakte te meten. Het kan zijn dat meetresultaten verschillen, waardoor de oppervlakte anders kan zijn dan bij vergelijkbare objecten. Je kunt geen rechten ontlenen aan de verschillen tussen de opgegeven en de werkelijke grootte. Voor een nauwkeurige maatvoering raden wij aan om zelf te (laten) meten.
Deze woning wordt aangeboden door een MVA Certified Expat Broker.
Lees meer Lees minderLOCATIE
- Provincie
- NOORD - HOLLAND
- Plaats
- AMSTERDAM
- Adres
- Eliza van Calcarstraat 13
- Postcode
- 1068 RR
KENMERKEN
INDELING
- Aantal kamers
- 6
- Aantal slaapkamers
- 5
- Aantal badkamers
- 1
- Voorzieningen
- Mechanische ventilatie, alarminstallatie, TV kabel, Airconditioning, Rookkanaal, Schuifpui
BLIJF OP DE HOOGTE
Schrijf je in voor onze nieuwsbrief.
CONTACTPERSOON

































































































