Grasweg 490
OBJECT
KEY KENMERKEN
BESCHRIJVING
THIS. is gelegen in het opkomende Buiksloterham en heeft een ideale ligging aan het IJ. Het project omvat 69 koopappartementen, variërend van studio’s tot een penthouse.
Dit nieuwbouwproject is reeds opgeleverd, waardoor je geen dubbele lasten hebt tijdens de bouw – een unieke situatie voor nieuwbouw.
Driekamerappartement in de punt
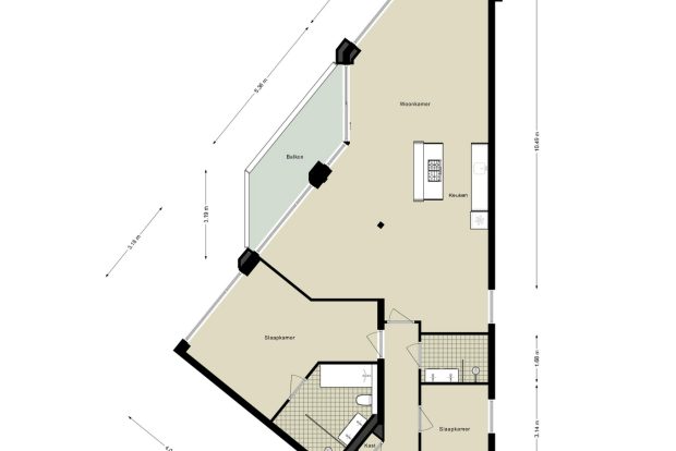
THIS. beschikt over een aantal driekamerappartementen gelegen in de punt, van de begane grond tot en met de zevende verdieping. Elk met een eigen buitenruimte. Dit specifieke appartement in de punt is gelegen op de zevende verdieping is beschikbaar voor 1.650.000 EUR. Deze v.o.n. prijs is inclusief afgekochte erfpacht voor 50 jaar. Hierdoor betaal je geen jaarlijkse canon aan de gemeente. Je hebt bij dit vijfkamerappartement de mogelijkheid om een parkeerplaats af te nemen.
Specificaties:
– Driekamerappartement in de punt;
– Appartement van 138m2;
– Zevende verdieping;
– 1.650.000 EUR;
– Eigen buitenruimte;
– Ligging: Westen.
THIS. met uitzicht over Noord en het IJ
De gebouwen van THIS. hebben een moderne en strakke architectuur. Veel appartementen bieden een prachtig uitzicht op het IJ. Rondom de gebouwen is er voldoende ruimte voor groen. Bovendien is er een “Hidden Garden” waar je in alle rust van de zon en de buitenlucht kunt genieten. Elk appartement beschikt tevens over een eigen buitenruimte.
69 koopappartementen
THIS. bestaat uit 69 koopappartementen, variërend van studio’s en appartementen tot een royaal penthouse. De woonoppervlaktes variëren van ongeveer 38 m² tot circa 200 m². De diversiteit aan woningen biedt voor ieder wat wils, van compacte startersappartementen tot ruime gezinswoningen en een exclusief penthouse met een schitterend uitzicht.
De appartementen zijn slim ingedeeld, waarbij grote raampartijen voor veel natuurlijk licht zorgen.
Wonen op een rustige plek, dicht bij Amsterdamse hotspots
THIS. is gelegen aan het IJ, in de bruisende wijk Buiksloterham. Hier profiteer je van het beste van twee werelden: een rustige, groene omgeving aan het water en toch dicht bij verschillende Amsterdamse hotspots. Denk hierbij aan de nieuwe stadswijk NDSM, die bekendstaat om zijn vele festivals en culturele evenementen, evenals populaire attracties zoals de A’DAM Toren en het EYE Filmmuseum.
Highlights:
– Oplevering per direct mogelijk;
– Je bent de eerste bewoner;
– Prachtige ligging aan de zonnige kant van het IJ;
– De appartementen zijn vrij op naam, geen kosten voor overdrachtsbelasting en leveringskosten;
– Erfpacht is afgekocht voor 50 jaar (hierdoor geen jaarlijkse canon betaling aan de gemeente);
– Mogelijkheid tot het kopen van een parkeerplaats voor €52.500,- in de onderliggende parkeergarage.
Zie jij jezelf al wonen op deze prachtige locatie? Of wil je meer weten over de beschikbaarheid van de andere appartementen? Neem dan contact op met de verkopend makelaar, Eefje Voogd Makelaardij via 020-3050560 of info@eefjevoogd.nl.
Deze informatie is met zorg samengesteld door Eefje Voogd Makelaardij B.V.
We kunnen echter niet aansprakelijk gesteld worden voor eventuele onvolledigheden of fouten. De Meetinstructie, die is gebaseerd op NEN2580, geeft een duidelijke manier om de gebruiksoppervlakte te meten. Het kan zijn dat meetresultaten verschillen, waardoor de oppervlakte anders kan zijn dan bij vergelijkbare objecten. Je kunt geen rechten ontlenen aan de verschillen tussen de opgegeven en de werkelijke grootte. Voor een nauwkeurige maatvoering raden aan om zelf (laten) meten.
Deze woning wordt aangeboden door een MVA Certified Expat Broker.
Lees meer Lees minderLOCATIE
- Provincie
- NOORD - HOLLAND
- Plaats
- AMSTERDAM
- Adres
- Grasweg 490
- Postcode
- 1031 HX
KENMERKEN
INDELING
- Aantal kamers
- 3
- Aantal slaapkamers
- 2
- Aantal badkamers
- 1
- Aantal woonlagen
- 1
- Voorzieningen
- Mechanische ventilatie, TV kabel, Buitenzonwering, Lift
GEÏNTERESSEERD IN DIT OBJECT?
PLAN EEN BEZICHTIGING IN
CONTACTPERSOON












































































