Korte Lepelstraat 93-3
OBJECT
KEY KENMERKEN
BESCHRIJVING
Korte Lepelstraat 93-III-IV in het Centrum (Plantage buurt/Roeterseiland).
Aan een autovrije straat gelegen ruim bovenhuis met veel ruimte en in een goede staat.
Dit heerlijke, ruime en goed onderhouden bovenhuis is gelegen in een rustige en doodlopende straat aan de Roetersstraat en is gelegen op eigen grond!
De Korte Lepelstraat is een klein straatje waar een aantal fraaie karakteristieke panden staan. Ook staat aan het eind van deze straat de goed aangeschreven Dr. Boekmanschool (lagere school). Het Roeterseiland, het gebied waar deze woning is gelegen, is op slechts een paar minuten lopen van de UvA, Artis, Kriterion en de Metro. Ook de Nieuwmarkt, het Waterlooplein en de oude binnenstad zijn te bereiken met een paar minuten fietsen.
INDELING:
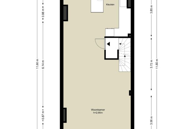
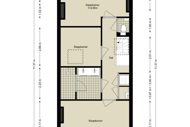
Het appartement is gelegen op de derde en vierde verdieping en heeft een leuk uitzicht naar de Roetersstraat door de vele ramen aan de voorzijde. De woning is 102 m2 en verdeeld over de twee bovenste verdiepingen. Op de derde verdieping is de ruime woonkamer met 3 ramen aan de voorzijde en een leuk uitzicht naar de Roetersstraat. De moderne en ruime woonkeuken is aan de achterzijde van de woning gelegen. Op de bovenste verdieping zijn 3 goede slaapkamers, de badkamer en een separaat toilet. De luxe badkamer is voorzien van een riante inloopdouche, een dubbele wastafel en een handoekenradiator. Alles in neutrale kleuren en ruim van opzet. Tevens is er een aparte wasruimte en een ruimte voor de CV ketel.
LOCATIE:
Centraal gelegen in de Plantage buurt direct tegenover de Universiteit van Amsterdam op het Roeterseiland. Om de hoek vind je een breed aanbod aan gezellige koffietentjes, ontbijt- en lunchzaken en filmtheater Kriterion. op loopafstand ligt Artis, de Hortus en voor je dagelijkse boodschappen een Albert Heijn op nog geen honderd meter afstand.
De woning is uitstekend bereikbaar met het openbaar vervoer. Metrostation Weesperplein bevindt zich op slechts een paar minuten lopen en tram 7 stopt bijna voor de deur. Met de auto bent u via de Weesperstraat-Wibautstraat (S112) binnen tien minuten op de Ring A10.
BIJZONDERHEDEN:
– Rustig gelegen (autovrije straat in het Centrum)
– Eigen grond
– Centrale ligging
– Het betreft hier een gemeentelijk monument pand
– Mooi karakteristiek pand
– Oplevering kan direct
– Actieve maar kleine V.v.E.
– Servicekosten ca. € 183,- pm
Deze informatie is door Eefje Voogd Makelaardij met de nodige zorgvuldigheid samengesteld. Onzerzijds wordt echter geen enkele aansprakelijkheid aanvaard voor enige onvolledigheid, onjuistheid of anderszins, dan wel de gevolgen daarvan. Alle opgegeven maten en oppervlakten zijn indicatief.
De Meetinstructie is gebaseerd op de NEN2580. De Meetinstructie is bedoeld om een meer eenduidige manier van meten toe te passen voor het geven van een indicatie van de gebruiksoppervlakte. De Meetinstructie sluit verschillen in meetuitkomsten niet volledig uit, door bijvoorbeeld interpretatieverschillen, afrondingen of beperkingen bij het uitvoeren van de meting. De oppervlakte kan derhalve afwijken van vergelijkbare panden en/of oude referenties. Wij benadrukken dat aan enig verschil tussen de opgegeven en de werkelijke grootte geen rechten kunnen worden ontleend. Indien de exacte maatvoering van belang is, raden wij aan de maten zelf te (laten) meten.
Lees meer Lees minderLOCATIE
- Provincie
- NOORD - HOLLAND
- Plaats
- AMSTERDAM
- Adres
- Korte Lepelstraat 93-3
- Postcode
- 1018 ZA
KENMERKEN
INDELING
- Aantal kamers
- 4
- Aantal slaapkamers
- 3
- Aantal badkamers
- 1
- Aantal woonlagen
- 2
- Voorzieningen
- TV kabel, Dakraam
GEÏNTERESSEERD IN DIT OBJECT?
PLAN EEN BEZICHTIGING IN
CONTACTPERSOON





















































































