Marnixkade 77D
OBJECT
KEY KENMERKEN
BESCHRIJVING
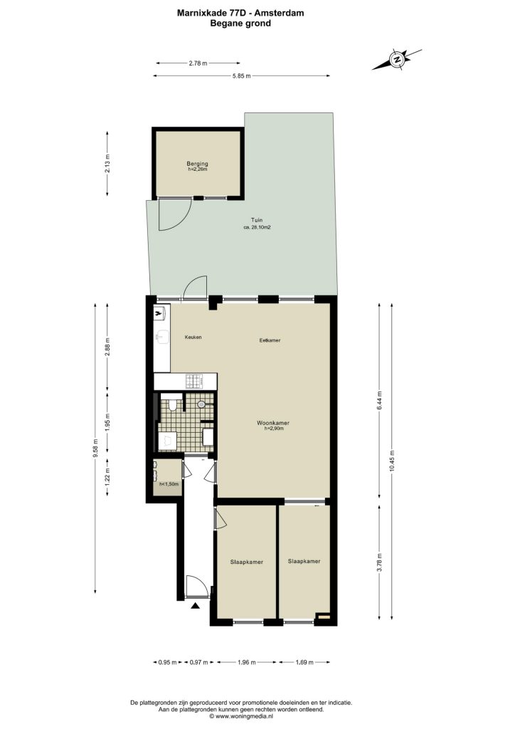
BEGANE GROND / GROUND FLOOR
Begane grond woning met heerlijke tuin, grote leefkeuken en twee slaapkamers aan de geliefde Marnixkade om de hoek van de Jordaan.
Dit charmante appartement van ruim 55m2 aan de Marnixkade 77D heeft naast een heldere indeling met veel licht, ook de mogelijkheid om een tweede slaapkamer te creëren. Hierdoor is deze sfeervolle benedenwoning geschikt voor iedereen die opzoek is naar ruimte, een heerlijke tuin en een sfeervol thuis in een fantastische omgeving. De bruisende Jordaan met veel boetieks, speciaalzaken, winkels en diverse horeca hotspots ligt namelijk om de hoek.
INDELING
Begane grond:
Bij binnenkomst in deze benedenwoning wordt meteen duidelijk dat aan veel details is gedacht, vooral in de prachtige living met open keuken. De zithoek bevindt zich centraal op de begane grond als een fijne verbinding tussen de eettafel en de werk/loungehoek aan de straatzijde. Deze hoek kan eenvoudig tot een tweede slaapkamer omgebouwd worden. Het zicht op het voorgelegen water van de Singelgracht en de bootjes is constant anders en typisch Amsterdams. De fraaie donker getinte vloer, gecombineerd met de neutrale tinten van de wanden en het houtwerk, het bijna 3 meter hoge plafond, de inbouwverlichting en de frisse keuken straalt een eigentijdse rust uit. De keuken is uitgevoerd met een vaatwasser, koelvriescombinatie, gaskookplaat, een afzuigkap en een combi-oven. In de keuken is op een slimme manier de cv-installatie verwerkt in een keukenkast. De deur geeft toegang tot de heerlijke achtertuin van 34 m2 met berging, groen en de mogelijkheid om optimaal te genieten van het stadse buitenleven op het aangelegde terras.
De lange hal na de voordeur geeft toegang tot de slaapkamer, een bergruimte en de badkamer. Aan de voorzijde ligt een ruime slaapkamer. De badkamer is uitgevoerd in lichte, grote tegels en beschikt over een inloopdouche, een wastafel, toilet en de aansluiting voor de wasmachine en droger. Een praktische ruimte die optimaal is ingedeeld, net als de rest van het appartement. In de hal is een bergkast geïntegreerd.
OMGEVING
Op de Marnixkade, met het water van de Singelgracht voor de deur, is het meer dan genieten van het constant veranderende uitzicht. Ook in de directe omgeving is er van alles te zien en te beleven. Op loopafstand liggen de charmante Jordaan en de bekende Negen Straatjes die beide een grote diversiteit aan winkels, markten, horeca gelegenheden en mogelijkheden voor de dagelijkse boodschappen bieden. Het nabijgelegen Westerpark is een uiterst aangename bestemming voor een rondje joggen, wandelen of simpelweg ontspannen. In het park ligt cultureel- en creatief centrum de Westergasfabriek, maar ook een kinderdagverblijf, diverse restaurants, een bioscoop, hotel, clubs en nog veel meer. De bereikbaarheid van de Marnixkade is meer dan uitstekend. Op enkele fietsminuten ligt het Amsterdamse centrum en het Centraal station. Met de auto is de belangrijkste uitvalsweg, de ring A10, snel bereikbaar om de stad uit te komen of andere stadsdelen te kunnen bereiken. Tevens is de ondergrondse Parkeergarage Marnix recent opgeleverd. Veel openbaarvervoer ligt eveneens in de nabijheid.
VERENIGING VAN EIGENAREN
De vereniging van eigenaren aan de Marnixkade 77 bestaat uit 4 leden en is in eigen beheer. De vereniging is gezond, er wordt jaarlijks vergaderd en onderhoud wordt in overleg gedaan. De servicekosten bedragen €150,- per maand.
BIJZONDERHEDEN
– Gelegen op eigen grond;
– CV ketel vervangen juni 2024;
– Fundering hersteld in 2007;
– 55 m2 aan gebruiksoppervlakte;
– Tuin van 34 m2;
– Vereniging van Eigenaren bestaat uit 4 leden en is in eigen beheer;
– Servicekosten bedragen €150,- per maand;
– Oplevering in overleg, vanaf medio augustus 2024;
– Asbest- en ouderdomsclausule van toepassing, standaard bij woningen ouder dan 1990.
Deze woning is gemeten volgens de Meetinstructie. De Meetinstructie is gebaseerd op de NEN2580. De Meetinstructie is bedoeld om een meer eenduidige manier van meten toe te passen voor het geven van een indicatie van de gebruiksoppervlakte. De Meetinstructie sluit verschillen in meetuitkomsten niet volledig uit, door bijvoorbeeld interpretatieverschillen, afrondingen of beperkingen bij het uitvoeren van de meting. Hoewel wij de woning met veel zorg hebben opgemeten kan het zijn dat er verschillen zijn in de afmetingen. Noch verkoper noch de makelaar accepteert enige aansprakelijkheid voor deze verschillen. De maatvoeringen worden door ons gezien als zuiver indicatief. Indien de exacte maatvoering voor jou van belang is, raden wij jou aan de maten zelf te (laten) meten.
Deze informatie is door ons met de nodige zorgvuldigheid samengesteld. Onzerzijds wordt echter geen enkele aansprakelijkheid aanvaard voor enige onvolledigheid, onjuistheid of anderszins, dan wel de gevolgen daarvan. Alle opgegeven maten en oppervlakten zijn indicatief. Van toepassing zijn de NVM voorwaarden.
Deze informatie is door ons met de nodige zorgvuldigheid samengesteld. Onzerzijds wordt echter geen enkele aansprakelijkheid aanvaard voor enige onvolledigheid, onjuistheid of anderszins, dan wel de gevolgen daarvan. Alle opgegeven maten en oppervlakten zijn indicatief. Van toepassing zijn de NVM voorwaarden.
This property is listed by a MVA Certified Expat Broker.
Lees meer Lees minderLOCATIE
- Provincie
- NOORD - HOLLAND
- Plaats
- AMSTERDAM
- Adres
- Marnixkade 77D
- Postcode
- 1015 ZE
KENMERKEN
INDELING
- Aantal kamers
- 3
- Aantal slaapkamers
- 2
- Aantal badkamers
- 1
- Aantal woonlagen
- 1
BLIJF OP DE HOOGTE
Schrijf je in voor onze nieuwsbrief.
CONTACTPERSOON
































































