Naritaweg 203B
OBJECT
KEY KENMERKEN
BESCHRIJVING
Op zoek naar een ruim en licht tweekamerappartement in Amsterdam?
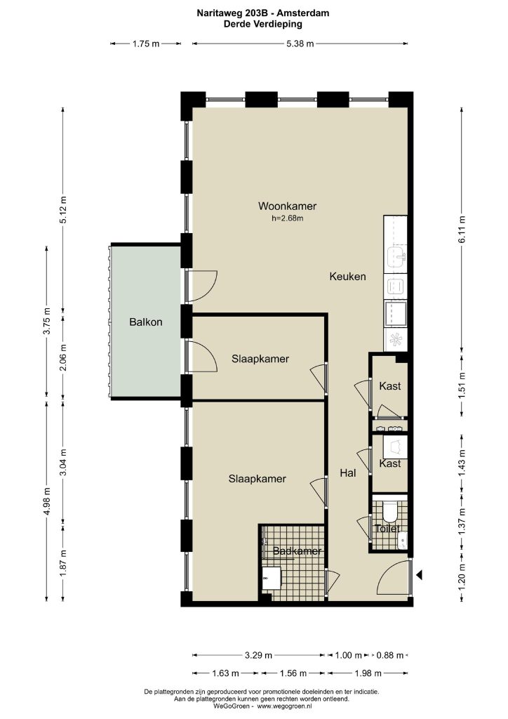
Dan is West Block Amsterdam Sloterdijk wellicht perfect voor jou! Het twee slaapkamer appartement is netjes afgewerkt en beschikt over een moderne keuken en badkamer. Het gestoffeerde appartement beschikt over hoge ramen en een balkon met vrij uitzicht. Het appartement is 66 m2 en is € 1.875,- exclusief voorzieningen en service kosten van € 44,- per maand. Het voorschot voor elektriciteit is € 67,- per maand.
Amsterdam Sloterdijk is een nieuw project in Amsterdam. Het biedt exclusieve en comfortabele appartementen met alle gemakken van thuis. De buurt ligt net ten westen van het stadscentrum, is goed bereikbaar met het openbaar vervoer en vol met parken, cafés en winkels. Daarnaast liggen er een aantal van de populairste attracties in Amsterdam op loopafstand.
Kenmerken:
– Geen woningdelers, geen studenten helaas;
– Minimale huurperiode van 2 jaar, daarna onbeperkt en maandelijks opzegbaar;
– Gestoffeerd twee slaapkamer appartement van +/- 66 m²;
– Kale huurprijs is € 1.875,-;
– Servicekosten zijn € 44,- per maand en het voorschot voor elektriciteit is € 67,- per maand;
– Rekeningen voor internet, water, belastingen zijn niet inclusief;
– Luxe keuken voorzien van alle inbouwapparatuur;
– Luxe badkamer en een apart toilet;
– Een ruim balkon van +/- 6 m2;
– Inkomenseis van 3,5 keer de bruto huur;
– Kosten voor een parkeerplek in de garage zijn € 150;
“Deze informatie is door ons met de nodige zorgvuldigheid samengesteld. Onzerzijds wordt echter geen enkele aansprakelijkheid aanvaard voor enige onvolledigheid, onjuistheid of anderszins, dan wel de gevolgen daarvan. Alle opgegeven maten en oppervlakten zijn indicatief. Van toepassing zijn de NVM voorwaarden.”
Lees meer Lees minderLOCATIE
- Provincie
- NOORD - HOLLAND
- Plaats
- AMSTERDAM
- Adres
- Naritaweg 203B
- Postcode
- 1043 CB
KENMERKEN
INDELING
- Aantal kamers
- 3
- Aantal slaapkamers
- 2
- Aantal woonlagen
- 1
- Voorzieningen
- Mechanische ventilatie
BLIJF OP DE HOOGTE
Schrijf je in voor onze nieuwsbrief.
CONTACTPERSOON





























































