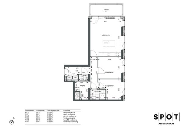
Hiraistraat 5B 15
OBJECT
KEY CHARACTERISTICS
Price
Living area
Outdoor space
€ 590.000
72 m2
9m2
DESCRIPTION
More LessLOCATION
- Region
- NOORD - HOLLAND
- City
- AMSTERDAM
- Adress
- Hiraistraat 5B 15
- Zip code
- 1101 DA
FEATURES
LAYOUT
- Number of rooms
- 3
- Number of bedrooms
- 2
- Number of bathrooms
- 1
- Number of floors
- 1
- Services
- Mechanical ventilation , TV Cable, Elevator, Domotica, Balanced ventilation system, Internal ventilation system
INTERESTED IN THIS PROPERTY?
REQUEST A VIEWING
CONTACT











































































