Elegaststraat 11-3
OBJECT
KEY KENMERKEN
BESCHRIJVING
Uniek en charmant loft-appartement met drie terrassen op toplocatie in Amsterdam-West!
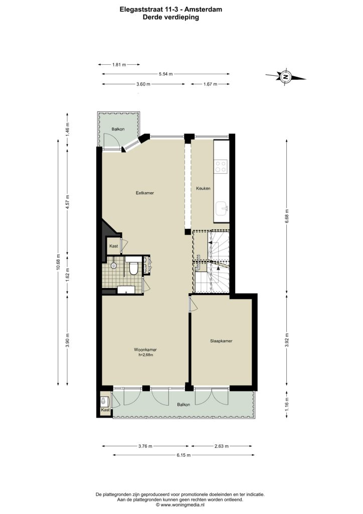
Dit heerlijke, lichte appartement van ca. 62 m² beschikt over maar liefst drie terrassen: twee balkons en een riant dakterras van ca. 60 m². Gelegen op de derde verdieping in een rustige, gezellige straat in de Erasmusparkbuurt, biedt deze woning een woon-leefkamer met halfopen keuken, charmante slaapkamer, ruime badkamer, en twee bergingen op de begane grond. Bovendien is de erfpacht eeuwigdurend afgekocht!
INDELING:
Via de entree op de tweede verdieping bereikt u de derde verdieping waar het appartement zich bevindt. U komt binnen in de fijne, ruime woon-leefkamer met halfopen keuken, voorzien van diverse apparatuur zoals een vaatwasser, koelkast, oven, een 6-pitsgasfornuis en voldoende opbergruimte. Aan de voorzijde bevindt zich een balkon van ca. 3 m² op het westen, perfect voor de namiddagzon. De woonkamer beschikt over een sfeervolle houtkachel, die zorgt voor extra warmte en gezelligheid. Aan de achterzijde geven openslaande deuren toegang tot het tweede balkon van ca. 6 m², dat ruimte biedt om heerlijk te zitten en een kopje koffie te drinken in de ochtendzon.
De ruime slaapkamer is aan de achterzijde van het appartement gesitueerd en beschikt over veel kastenruimte. De nette badkamer, in het midden gesitueerd, beschikt over een inloopdouche, wastafelmeubel en toilet. Ruime inpandige berging voor wasmachineaansluiting naast de badkamer.
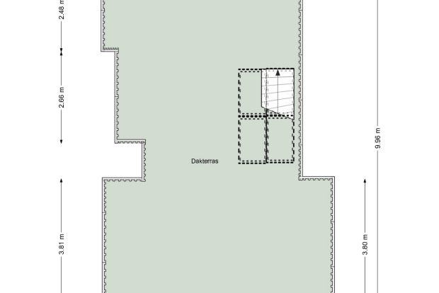
Via een interne trap met vier dakramen – die zorgen voor extra lichtinval – bereik je het riante en geweldige dakterras van ca. 60 m². Hier geniet je de hele dag van de zon, met ruimte voor een lounge, barbecue en gezellig samenzijn met vrienden en familie.
LOCATIE
De woning ligt in een rustige straat in het populaire Bos en Lommer, op loopafstand van het groene Erasmuspark en nabij het bruisende Westerpark. In de directe omgeving vind je een breed aanbod aan winkels en hotspots. Denk aan gezellige horecagelegenheden zoals De Neef van Fred, Abbey, No Man’s Art Gallery, Buurman & Buurman, Bar Kaufmann en theater Podium Mozaïek. Voor liefhebbers van koffie en lekker eten zijn er plekken als Friedhats Fuku cafe, Fort Negen en Farine Bakery. Voor een ontspannen wandeling of sportieve activiteit ben je zo in het Erasmuspark, waar je ook kunt genieten van een koffie bij parkcafé Terrasmus.
De ligging is ideaal: het centrum van Amsterdam, de Jordaan en Oud-West bereik je binnen 5 à 10 minuten fietsen. Met de auto ben je in enkele minuten op de Ring A10. Ook het openbaar vervoer is uitstekend: tram 19 brengt je rechtstreeks naar Station Sloterdijk, het centrum, de Elandsgracht, het Leidseplein en Amsterdam Oost. Bovendien is een parkeervergunning direct beschikbaar.
EIGENDOMSSITUATIE
– Erfpacht is eeuwigdurend afgekocht!
VERENIGING VAN EIGENAREN
– Actieve en gezonde VvE (ca. 17k in reservefonds)
– Professioneel beheerd door Amstarr VvE Beheer B.V.
– Maandelijkse VvE bijdrage € 170,- per maand
BIJZONDERHEDEN
– Woonoppervlakte 61,8 m² (NEN2580 meetinstructie aanwezig);
– Rustige ligging in de Erasmusparkbuurt;
– Twee balkons (op het oosten en westen);
– Riant dakterras van ca. 60 m²;
– 2 separate bergingen op de begane grond;
– Mogelijkheid tot realiseren van tweede slaapkamer;
– Gehele appartement is voorzien van houten kozijnen met dubbele beglazing;
– Gemeenschappelijke tuin, die goed onderhouden wordt door de buurtbewoners;
– Oplevering in overleg;
Deze informatie is door Eefje Voogd Makelaardij | from CBRE met de nodige zorgvuldigheid samengesteld. Onzerzijds wordt echter geen enkele aansprakelijkheid aanvaard voor enige onvolledigheid, onjuistheid of anderszins, dan wel de gevolgen daarvan. Alle opgegeven maten en oppervlakten zijn indicatief.
De Meetinstructie is gebaseerd op de NEN2580. De Meetinstructie is bedoeld om een meer eenduidige manier van meten toe te passen voor het geven van een indicatie van de gebruiksoppervlakte. De Meetinstructie sluit verschillen in meetuitkomsten niet volledig uit, door bijvoorbeeld interpretatieverschillen, afrondingen of beperkingen bij het uitvoeren van de meting. De oppervlakte kan derhalve afwijken van vergelijkbare panden en/of oude referenties. Wij benadrukken dat aan enig verschil tussen de opgegeven en de werkelijke grootte geen rechten kunnen worden ontleend. Indien de exacte maatvoering van belang is, raden wij aan de maten zelf te (laten) meten.
Lees meer Lees minderLOCATIE
- Provincie
- NOORD - HOLLAND
- Plaats
- AMSTERDAM
- Adres
- Elegaststraat 11-3
- Postcode
- 1055 TG
KENMERKEN
INDELING
- Aantal kamers
- 3
- Aantal slaapkamers
- 1
- Aantal badkamers
- 1
- Aantal woonlagen
- 1
- Voorzieningen
- TV kabel, Dakraam, Natuurlijke ventilatie
BLIJF OP DE HOOGTE
Schrijf je in voor onze nieuwsbrief.
CONTACTPERSOON




































































































