Lauriergracht 47F
OBJECT
KEY KENMERKEN
BESCHRIJVING
Een oase van rust, licht en ruimte in het hart van de Jordaan
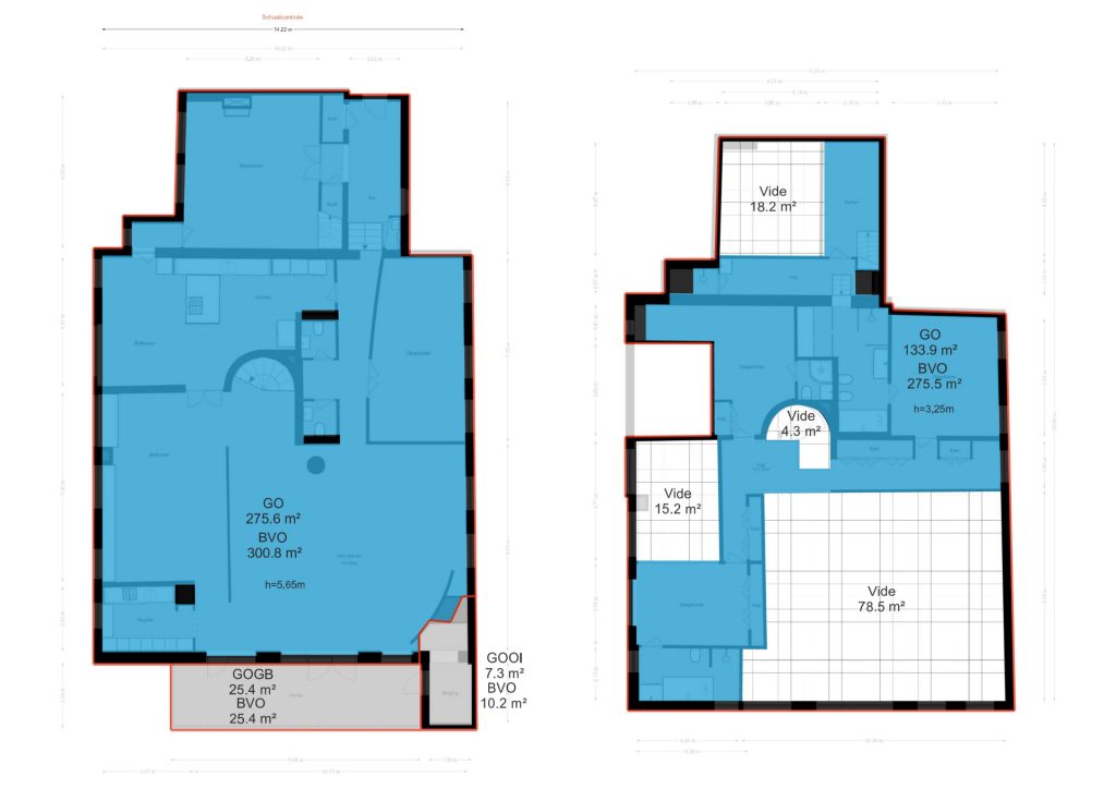
Aan één van de meest charmante en rustige grachten van Amsterdam, verscholen achter de gevel van een voormalig schoolgebouw, ligt een uitzonderlijk appartement van maar liefst ca 410 m² (BVO 587 m²).
Gelegen in het historische complex De Voorzienigheid (Rijksmonument), biedt het appartement een zeldzame combinatie van grandeur, moderne architectuur, serene privacy en plafondhoogtes tot 5,65 meter – midden in het bruisende centrum van Amsterdam.
Privé parkeerplaats op afgesloten naastgelegen parkeerterrein inbegrepen.
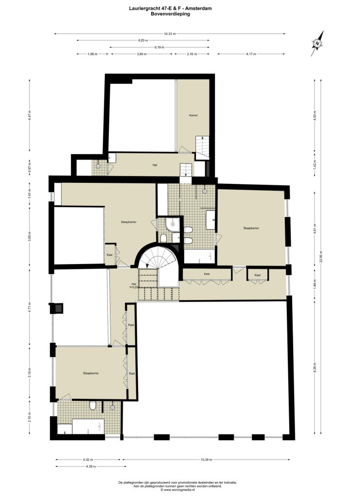
Het appartement bestaat uit 2 appartementsrechten en telt maar liefst 6 slaap-/ werk-kamers en 4 badkamers waardoor ook een together-living-apart situatie tot de mogelijkheden behoort.
WONEN IN STIJJL EN STILTE
Het appartement bevindt zich aan de achterzijde van het gebouw, waardoor het volledig gevrijwaard is van straatgeluid. Wat rest is het rustgevende geluid van vogels uit de omliggende binnentuinen. Aan drie zijden bieden de vele raampartijen uitzicht op groene fraai aangelegde tuinen, waaronder de binnentuin van het voormalige klooster met schitterende kapel van architect Bleys, en de tuin van zorgcomplex De Uylenburgh.
INDELING & SFEER:
Via de statige entree met originele details en hoog plafond bereikt u het appartement op de eerste verdieping per lift of via het authentieke trappenhuis. De woning is verdeeld over meerdere sfeervolle ruimtes die organisch met elkaar verbonden zijn. Ondanks de royale afmetingen voelt het geheel intiem en geborgen.
Het riante terras van maar liefst 25 vierkante meter is een heerlijke plek op tot rust te komen.
Living: Een indrukwekkende ruimte met hoog plafond, grote ramen, een gas open haard en een entresol met werkkamer. Ideaal voor zakelijke bijeenkomsten of als zelfstandige studio.
Keuken: Een op maat gemaakte, professioneel uitgeruste keuken met apparatuur van Miele en Wolf, waaronder meerdere ovens, een tepanyaki-plaat, warmhoudlade en quooker. De keuken is afsluitbaar en vormt het warme hart van de woning.
De eetkamer biedt ruimte voor een groot gezelschap, met veel ingebouwde bergruimte en directe verbinding met de keuken.
Woonkamer: Een zonovergoten ruimte met ruim 5.5 meter hoge plafonds, gietijzeren zuilen, open haard en toegang tot een royaal balkon op het zuiden met uitzicht op de binnentuin.
OMGEVING:
Gelegen midden in de Jordaan met openbaar vervoer op loopafstand. In de directe omgeving zijn er volop winkels, boetieks, cafés en restaurants. Op nog geen 5 minuten loopafstand liggen de gezellige Negen Straatjes, het Leidseplein met de Stadsschouwburg, bioscopen en het De La Mar theater. Ook het Vondelpark is binnen enkele fietsminuten bereikbaar.
BIJZONDERHEDEN:
Tweede keuken/bijkeuken met volledige uitrusting;
Uitgebreide beveiliging;
Gelegen op eigen grond (geen erfpacht);
Beveiligde privéparkeerplaats op afgesloten terrein;
Berging in onderbouw;
Twee appartementsrechten;
Gemeentelijk monument;
Gezonde VvE met eigen beheerder;
Deze informatie is door Eefje Voogd Makelaardij | from CBRE met de nodige zorgvuldigheid samengesteld. Onzerzijds wordt echter geen enkele aansprakelijkheid aanvaard voor enige onvolledigheid, onjuistheid of anderszins, dan wel de gevolgen daarvan. Alle opgegeven maten en oppervlakten zijn indicatief.
De Meetinstructie is gebaseerd op de NEN2580. De Meetinstructie is bedoeld om een meer eenduidige manier van meten toe te passen voor het geven van een indicatie van de gebruiksoppervlakte. De Meetinstructie sluit verschillen in meetuitkomsten niet volledig uit, door bijvoorbeeld interpretatieverschillen, afrondingen of beperkingen bij het uitvoeren van de meting. De oppervlakte kan derhalve afwijken van vergelijkbare panden en/of oude referenties. Wij benadrukken dat aan enig verschil tussen de opgegeven en de werkelijke grootte geen rechten kunnen worden ontleend. Indien de exacte maatvoering van belang is, raden wij aan de maten zelf te (laten) meten.
Er zal een niet-zelfbewoningsclausule worden opgenomen in de koopakte.
Deze woning wordt aangeboden door een MVA-gecertificeerde expatmakelaar.
Lees meer Lees minderLOCATIE
- Provincie
- NOORD - HOLLAND
- Plaats
- AMSTERDAM
- Adres
- Lauriergracht 47F
- Postcode
- 1016 RG
KENMERKEN
INDELING
- Aantal kamers
- 10
- Aantal slaapkamers
- 6
- Aantal badkamers
- 3
- Aantal woonlagen
- 2
- Voorzieningen
- Mechanische ventilatie, alarminstallatie, TV kabel, Lift, Jacuzzi, Stoomcabine, Sauna, Natuurlijke ventilatie
GEÏNTERESSEERD IN DIT OBJECT?
PLAN EEN BEZICHTIGING IN
CONTACTPERSOON















































































































































