Nassaukade 23-3
OBJECT
KEY KENMERKEN
BESCHRIJVING
Nassaukade 23-III, riant bovenhuis met een zonnig dakterras en fantastisch uitzicht!
Luxe en ruim bovenhuis van ca. 144 m² gelegen op de grens van de Amsterdamse Jordaan en de Staatsliedenbuurt! De woning is gelegen aan het begin van de Nassaukade op loopafstand van het Westerpark en het Haarlemmerplein/Jordaan. De woning is voorzien van drie slaapkamers, twee ruime badkamers, een woonkeuken, een living en een heerlijk ruim dakterras waar je tot in de late uurtjes kunt genieten van de zon.
LIGGING:
Het appartement is gelegen aan de rand van de Jordaan. In de directe omgeving vindt u diverse voorzieningen waaronder lagere en middelbare scholen en stadsparken zoals o.a. het Westerpark met zijn diverse horeca. Het Centraal Station is op 10 minuten fietsen en ook met de auto is de woning via verschillende uitvalswegen gemakkelijk te bereiken. Parkeren geschiedt middels vergunningstelsel.
INDELING:
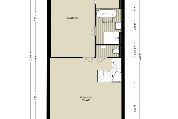
Gemeenschappelijk trappenhuis met eigen entree op de tweede verdieping. Hier bevindt zich een hal met ruimte voor een garderobe.
DERDE VERDIEPING:
Via de hal bereik je de ruime woonkeuken aan de achterzijde van de woning, met diverse apparatuur en een kookeiland met bar gedeelte. Aan de voorzijde van de woning bevinden zich twee slaapkamers. Op deze verdieping is de eerste badkamer voorzien van inloopdouche, een toilet en een dubbele wastafel.
KAP VERDIEPING:
Middels de open trap kom je op de vierde verdieping waar in de kap de woonkamer is. Hier is ook een riante “ouder” slaapkamer met een inloopkast/berging. Deze slaapkamer is rustig gelegen aan de achterzijde van de woning. Op deze verdieping is de tweede en luxe badkamer die is voorzien van een badkamer met ligbad, inloopdouche en wastafel. Ook is er een separaat toilet. Het ruime en zonnige dakterras van ca. 30 m2 is via een vaste trap te bereiken vanuit de woonkamer en via een vaste opbouw waar je ook nog een werkplek kan maken. Vanaf dit terras heb je een waanzinnig uitzicht over de stad en de gehele dag de zon.
BIJZONDERHEDEN:
– Ruim bovenhuis van ca. 144 m² met dakterras
– Drie goed bemeten slaapkamers
– Royaal dakterras van ca. 29 m²
– Twee luxe badkamers
– Gelegen op eigen grond
– Energielabel C
– VvE bijdrage: € 230,- per maand
– Tegen de Jordaan aan gelegen
– Oplevering kan direct
– Op loopafstand van het Westerpark en Westergasterrein!
Deze informatie is met zorg samengesteld door Eefje Voogd Makelaardij b.v. We kunnen echter niet aansprakelijk gesteld worden voor eventuele onvolledigheden of fouten. De Meetinstructie, die is gebaseerd op NEN2580, geeft een duidelijke manier om de gebruiksoppervlakte te meten. Het kan zijn dat meetresultaten verschillen, waardoor de oppervlakte anders kan zijn dan bij vergelijkbare objecten. Je kunt geen rechten ontlenen aan de verschillen tussen de opgegeven en de werkelijke grootte. Voor een nauwkeurige maatvoering raden wij aan om zelf te (laten) meten
Deze woning wordt aangeboden door een MVA Certified Expat Broker.
Lees meer Lees minderLOCATIE
- Provincie
- NOORD - HOLLAND
- Plaats
- AMSTERDAM
- Adres
- Nassaukade 23-3
- Postcode
- 1052 CH
KENMERKEN
INDELING
- Aantal kamers
- 4
- Aantal slaapkamers
- 3
- Aantal badkamers
- 2
- Aantal woonlagen
- 2
- Voorzieningen
- TV kabel, Dakraam, Natuurlijke ventilatie
BLIJF OP DE HOOGTE
Schrijf je in voor onze nieuwsbrief.
CONTACTPERSOON































































































